
| 香榭兰庭138平米四室两厅两卫简约中式装修效果图 |
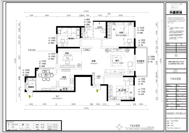
项目地址: 香榭兰庭 兰廷面积: 138平米 设计风格:简约中式 项目户型:四室两厅两卫一厨 项目设计师:阮开萍 主要材料 : 全抛釉瓷砖、壁画、石膏板、实木线条 、实木花格等 本案通过和业主的沟通、对业主性格喜好的分析,选择了中式风格。本案在颜色上选用了较为沉稳的灰色和白色结合来协调,并配以部分红木家具,色彩艳丽的蓝色配饰来点缀;黄色水曲柳木纹的家具让整个空间看起来温馨,部分红木家具,搭配上中式感觉的壁纸、装饰画和一些中式特点的配饰,让空间增加了中国传统文化气息,更具韵味,色彩明亮的抱枕让空间更具活力,这样的搭配使得空间具有中式风格的优雅与文化底蕴,却又少了些中式特有的严谨庄重,多了几许舒适惬意与灵动。 客厅电视墙简洁的雕花,朴素的家具,自然气息浓郁的沙发背景画,优雅高贵,从容大气的性格特点;规矩的实木线条吊顶,木质的中式家具,具有中式韵味的配饰,,给人以严谨庄重,文化气息浓厚的感觉。
|
相关阅读 |