
| 汉府公馆280平米大平层四室两厅两卫港式装修效果图 |
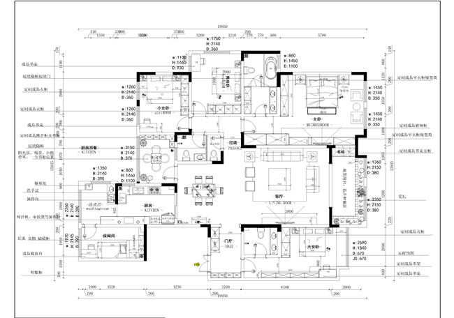
项目地址: 汉府公馆 面积:280平米大平层 设计风格:港式 项目户型:四室两厅两卫一厨 项目设计师:阮开萍 主要材料 : 微晶石瓷砖、银箔、硬包、壁布、pu线条等 业主男性,年龄35岁左右5口之家,政府机关单位,有一大女儿( 12岁),小女儿、儿子(龙凤胎2岁左右)港式装修风格一般都是简洁而不简单,因为地域位置与历史发展的原因。 现代的人总希望在装修时可以经济实惠,并且舒适,更重要的就是花很少的钱,还要体现出品味。而港式风格有所不同的就是,在追求实用性的同时,还要体现现代化社会的个性与精致的特点。 所以,现代港式风格装修在空间上讲求通透,基本上会餐厅与客厅一体化或者开放式, 客厅布置简洁自然,色彩和谐,暖色沙发将客餐厅布置为开放式,电视墙的设计及文化砖的设计凸现客厅布置,强调时尚感,整体设计给人的感觉现代。各自空间功能要相对独立,每个卧室的都有独立的学习空间,但其他公共使用功又能相互有联系,细节考虑比多价,包括在使用中的舒适性、便利美观性,特别是各类插座、开关、空调、灯具、生活物品搁置等考虑较多。
|
相关阅读 |